



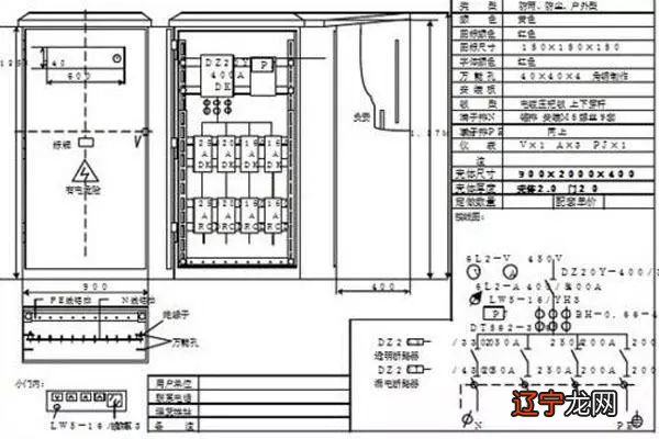
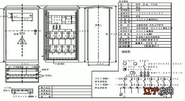
总配电箱(柜)

总配电箱内设400A-630A具有隔离功能的DZ20型透明塑壳断路器作为主开关 , 分路设置4-8路采用具有隔离功能的DZ20系列160A-250A透明塑壳断路器 , 配备DZ20L(DZ15L)或LBM-1系列作为漏电保护装置 , 使之具有欠压、过载、短路、漏电、断相保护功能 , 同时配备电度表、电压表、电流表两组电流互盛器 。漏电保护装置的额定漏电动作电流与额定漏电动作时间的乘积不大于30mA.S , 最好选用额定漏电动作电流100-200mA , 额定漏电动作时间大于0.1S , 其动作时间为延时动作型 。









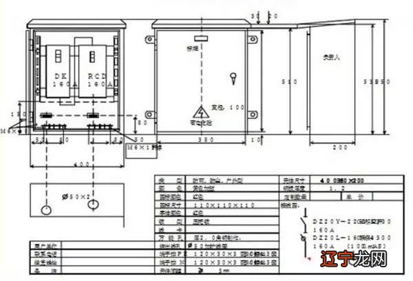
开关箱(按一机一闸一漏一箱设置)
(1)电焊机开关箱内设DZ20-100∕2系列或KDM1-100∕2(100A、380V)透明塑壳断路器作为控制开关 , DZ15LE-100∕2(DZ20L-100∕2)或LBM-1-100∕2(100A)漏电断路器 , BFGD系列二次防触电保护器;PE端子排为3个接线螺栓 。

(2)塔式起重机开关箱内设KDM1或DZ20(63-100A、380V)系列透明塑壳断路器作为控制开关 , 配置DZ15LE、DZ20L或LBM-1系列漏电断路器;PE线端子排为3个接线螺栓 。

(3)3.0KW以下用电设备开关箱内设KDM1或DZ20(20-40A、380V)透明塑壳断路器作为控制开关分电箱 , 配置DZ15LE、DZ20L或LBM-1(16-20A)系列漏电断路器 , PE线端子排为4个接线螺栓 。


以上关于本文的内容,仅作参考!温馨提示:如遇专业性较强的问题(如:疾病、健康、理财等),还请咨询专业人士给予相关指导!
「辽宁龙网」www.liaoninglong.com小编还为您精选了以下内容,希望对您有所帮助:- 可燃冰主要成分是什么
- 电荷效应和分子筛效应
- 决战!平安京装备分析之法术篇 学出装看这里
- 大龄女性不要穿得廉价随意,精致时髦才显气质,这么搭配会很加分
- 分享4个亲测有效的网易云音乐格式转换方法,值得收藏
- 大帝哈登同时发威!合砍55分,费城76人铁树开花求得一胜
- 裁掉李慕豪!北京首钢球迷被激怒,年薪550万,场均5分3篮板
- 乐基儿长胖真显壮,穿小号连衣裙硬勒出腰线,转身“厚背”太减分
- 女生瘦腿最快的方法有哪些?瘦腿最好用的方法分享
- 口语交际的作用有哪些,教学建议分为几点呢?
