一家人142㎡纯白复式,丢掉客厅沙发,清清透透现代风
142㎡纯白复式 , 丢掉客厅沙发 , 清清透透现代风
文章图片
- 纯白清透 清新治愈 -
设计方案
DESIGN PLAN
清清爽爽的四口之家 , 对家庭成员间的交流非常重视 。 原户型是四室的复式 , 空间稍显局促 , 设计师前后改稿3次 , 舍弃楼下客房 , 联通客餐厨 , 搭配原木+纯白的配色 , 让呆板格局化身为清新治愈的神仙居所!
▽ 设计亮点 ▽
●改4房为3房 , 让各个空间更加宽敞舒适
●客厅放弃常规的沙发 , 用一张大板桌煮茶论道、辅导小孩 , 更贴风格也更多功能
●用投影代替电视机 , 增加更多的储物区 , 轻松隐藏杂物
文章图片
文章图片
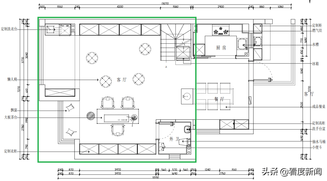
△户型图
客厅
LIVING ROOM
?点击查看还原效果 ?
文章图片
客厅是一家人活动的主要区域 , 也是改造重点 , 舍弃原有客房 , 联通客餐厨+阳台形成一个一镜到底的极大空间 。 纯白+原木的配色让此处更为清透明亮 , 散发出夏日柠檬水的清新 。
文章图片
文章图片
通透的效果离不开这张大板桌 , 既可煮茶论道 , 也可辅导小孩 , 还方便移动 , 是业主最满意的决定 。 前后收纳柜按9藏1露的比例设计 , 轻松实现0杂物 。
文章图片
文章图片
阳台
BALCONY
阳台纳入客厅后大大扩展了室内的活动空间 , 洗衣机+烘干机+壁挂洗衣机的组合解决一家人衣物的洗晒 , 再次解放空间 。
文章图片
文章图片
文章图片
餐厅
DINING ROOM
?点击查看还原效果 ?
文章图片
餐厅看着简单 , 其实也融合了多种功能 。 餐边柜预留一排插座 , 坐等咖啡机、早餐机的到来 。 餐桌紧靠小岛台 , 简易西厨就此诞生 , 可以让一家人都参与到料理的过程中 。
文章图片
文章图片
文章图片
厨房
KITCHEN
满足中国胃少不了一个独立的中厨 , 业主特别选择了透明的吊轨移门来隔断 , 美观好打理 。 还把冰箱放到了餐厅位置 , 利用简易西厨达成备菜与料理的分工 。
【一家人142㎡纯白复式,丢掉客厅沙发,清清透透现代风】
以上关于本文的内容,仅作参考!温馨提示:如遇专业性较强的问题(如:疾病、健康、理财等),还请咨询专业人士给予相关指导!
「辽宁龙网」www.liaoninglong.com小编还为您精选了以下内容,希望对您有所帮助:- 公寓 76㎡现代风公寓设计,简约精致、看一眼就觉得舒适
- 一家人 昆凌独自一人带俩娃不喊累,穿低领难得秀性感,亲手做蛋糕超贤惠
- 一家人 伊万卡一家人度假,她穿黑色运动装好显瘦,180cm超模身材太亮眼
- 雷佳音娇妻晒福照,一家人温馨团聚好温暖,女儿老虎装抢镜
- 服装 雷佳音娇妻晒福照,一家人温馨团聚好温暖,女儿老虎装抢镜
- 郭晶晶 郭晶晶妈妈罕见露脸,现身香港参加孙子表演,一家人的颜值都好高
- 中国38分钟视频:社区共享养老→35㎡胡同房、适老化15年 | 黎阿姨聊养老
- 空间88㎡精致的法式之家,迤逦的蓝色,优雅的灰色...少女般的轻盈灵动!
- 设计 一家人过年就要这样穿!
- 黑色 62岁毛舜筠晒一家人合照,丈夫比自己大14岁,两人同框更像爷孙照
