木材|125㎡轻奢三居,化繁为简,向美而生
125㎡轻奢三居 , 化繁为简 , 向美而生 125㎡轻奢三居 , 化繁为简 , 向美而生
文章图片
- 用心生活 品味美好 -
设计方案
DESIGN PLAN
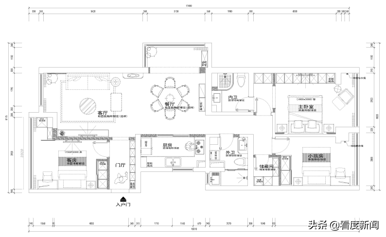
经典的3室户型 , 面积适中 , 动静分明 。 唯一欠缺的地方就是客餐厅不在同一空间 , 造成两处整体偏小、不统一 , 也减弱了南北通风采光效果 。 后期设计中重新规划了空间布局 , 将此缺点完美改善 , 同时将木材、石材等天然素材融入现代空间风格 , 实现了业主心中设计与家的美好结合 。
▼ 设计亮点 ▼
● 扩大客餐厅面积 , 优化室内采光通风 。
● 双侧灯光吊顶 , 烘托整体空间的层次与氛围 。
● 融入石材、木材等天然元素 , 增强空间的宜居性 。
文章图片
文章图片
△户型改造前后
客厅
LIVING ROOM
空间干净利落 , 于设计中越级升华 。 双侧灯光吊顶 , 烘托整体空间的层次与氛围 。 纳帕皮沙发在内嵌的极简磁吸灯具下质感尽显 , 低调的选色又与橙色装饰画形成对比 , 氛围明快 。
文章图片
文章图片
文章图片
“直白”的设计语言将木材、石材等天然素材融入现代空间风格 , 混搭有序 , 随性演绎时尚空间 。
玄关
ENTRANCE
灰玻玄关柜门给足归家的仪式感 , 让过道不再狭小 , 而是显得精致、通透;一道垭口自然分割空间 , 过渡风尘仆仆与家的温馨 。
文章图片
餐厅
DINING ROOM
造型简单的餐厅以丰富的材质纹理给人以饱满的视觉享受 , 黄铜吊灯、岩板餐桌、皮质餐椅共同搭配出讲究的轻奢体验 , 用细节充实生活轮廓 。
文章图片
文章图片
主卧
BEDROOM
卧室空间围绕舒适展开 , 无主灯设计让光线更加均匀 , 适当的木饰面让空间气质趋向温和安静 , 再加一把沙发椅 , 足以消解一天工作的疲惫 。
文章图片
文章图片
文章图片
儿童房
BEDROOM
活泼的蓝黄对比色让气氛调整至儿童区间 , 装饰贵精不贵多 , 简单的铅笔造型衣架与地球仪台灯就能让孩子爱上自己的小空间 。
文章图片
文章图片
次卧
BEDROOM
次卧主要为父母的小住准备 , 棕+灰的组合宁心静气 , 适当的纹理变化让风格不至单调 , 体现气质与感性的平衡 。
以上关于本文的内容,仅作参考!温馨提示:如遇专业性较强的问题(如:疾病、健康、理财等),还请咨询专业人士给予相关指导!
「辽宁龙网」www.liaoninglong.com小编还为您精选了以下内容,希望对您有所帮助:- 公寓 76㎡现代风公寓设计,简约精致、看一眼就觉得舒适
- 中国38分钟视频:社区共享养老→35㎡胡同房、适老化15年 | 黎阿姨聊养老
- 空间88㎡精致的法式之家,迤逦的蓝色,优雅的灰色...少女般的轻盈灵动!
- Jasmine居室造园,成都设计师夫妻的700㎡秘密花园
- 采光学区房改造又出神作!34㎡住五口人,莫兰迪粉墙、睡眠盒子太惊艳了!
- 魅力","m":"9f2e125645cfb38951377ea15a9f27c71b797ce","nlabel":"stat_3123612869:zm.news.so.com:6aOO5LmQ5ZKM6L6w,pageType_zmt,glevel_3","ntag":"tfashion;sfashion_时尚;kfashion_
- 电视柜80㎡零死角,家务没多少!
- 木材谁说朽木不可雕?还可变废为宝 “靓”街区
- 柜子封神了啊!香港18㎡纳米房挤进一家四口,全屋23个收纳柜,有梳妆台还有露天阳台!
- Single新揭幕500㎡上海老洋房,藏着5间热门中古家具店
